Konkursai
UAB „Naujasis turgus“ lauko paviljono ir pagrindinio pėsčiųjų tako rekonstravimo atviras projekto konkursas
UAB „Naujasis turgus“ ,Taikos pr. 80, LT-93162 Klaipėda (Perkančioji organizacija) ir Lietuvos architektų sąjungos Klaipėdos apskrities organizacija, Bažnyčių g. 6, LT-91246 Klaipėda (Konkurso organizatorius), skelbia UAB „Naujasis turgus“ lauko paviljono ir pagrindinio pėsčiųjų tako rekonstravimo atvirą projekto konkursą.
Konkurso tikslas – rasti geriausiai konkurso sąlygas tenkinantį ir įgyvendinimui tinkamą architektūrinį UAB „Naujasis turgus“ (Taikos pr. 80, Klaipėda) lauko prekybos paviljono ir pagrindinio pėsčiųjų tako rekonstravimo sprendimą.
Informacija apie Konkursą skelbiama Centrinėje viešųjų pirkimų informacinėje sistemoje (toliau – CVPIS) – spausti čia.
__________________________________________________________________________________________________________________________________
UAB „Naujasis turgus“ lauko paviljono ir pagrindinio pėsčiųjų tako rekonstravimo projekto konkursui pateikti darbai eksponuojami Lietuvos architektų sąjungos Klaipėdos apskrities organizacijoje, Bažnyčių g. 6, LT-91246 Klaipėda.
Ekspozicija nuo lapkričio 17 d. iki lapkričio 27 d., darbo dienomis nuo 10.00 iki 17.00 val., penktadienį iki 15.45 val.
Viešas konkurso darbų aptarimas 2014 m. lapkričio 27d. 10.00 val. Lietuvos architektų sąjungos Klaipėdos apskrities organizacijoje, Bažnyčių g. 6, LT-91246 Klaipėda.
Vertinimo Komisijos posėdis 2014 m. lapkričio 27 d. nuo 13.00 val.
_________________________________________________________________________________________________________________________________
2014-12-01
INFORMACIJA DĖL „UAB „NAUJASIS TURGUS“ LAUKO PAVILJONO IR PAGRINDINIO PĖSČIŲJŲ TAKO REKONSTRAVIMO PROJEKTO KONKURSO VYKDYMO
2014 m. lapkričio 27 d. komisijos posėdyje įvertinti UAB „Naujasis turgus“ lauko paviljono ir pagrindinio pėsčiųjų tako rekonstravimo atviro projekto konkurso projektai ir sudaryta preliminari projektų eilė:
- Projektas „Šiandien turgus“ – 1,33 balo;
- Projektas „Baltasis paviljonas“ – 1,66 balo.
Viešojo pirkimo komisijos posėdis, kuriame bus atplėšiamos pakuotės su devizų šifrais ir tikrinama tiekėjų kvalifikacija, įvyks 2014 m. gruodžio 4 d. 12:00 val. Lietuvos architektų sąjungos Klaipėdos apskrities organizacijoje, Bažnyčių g. 6, Klaipėda.
Vokų su devizų šifrais atplėšimo procedūroje turi teisę dalyvauti visi projektus pateikę dalyviai arba jų įgalioti atstovai.
Komisijos pirmininkas Viačeslav Karmanov
__________________________________________________________________________________________________________________________________
2014-12-04
INFORMACIJA DĖL „UAB „NAUJASIS TURGUS“ LAUKO PAVILJONO IR PAGRINDINIO PĖSČIŲJŲ TAKO REKONSTRAVIMO PROJEKTO KONKURSO VYKDYMO
2014 m. gruodžio 4 d. komisijos posėdyje atplėštos pakuotės su projektų devizų šifrais ir paskelbta preliminari projektų eilė:
3. Galutinė projektų eilės bus sudaryta 2014 m. gruodžio 8 d. 13:00 val. komisijos posėdyje įvertinus pateiktus papildomus kvalifikacijos duomenis.
2014 m. gruodžio 8 d. komisijos posėdyje įvertinus pateiktus papildomus kvalifikacijos duomenis sudaryta galutinė projektų eilė:
Projekto autoriai: Mindaugas Reklaitis, Mantas Olšauskas, Ieva Cicėnaitė, Donatas Cesiulis, Kristina Puidokaitė.
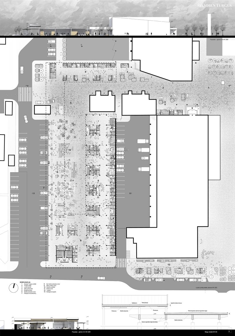
I vieta projektas „Šiandien turgus“. Dalyvis: MB „Sprik“. Į.k. 303053107, Aguonų g. 7, LT-03213, Vilnius. Projekto autoriai: Mindaugas Reklaitis, Mantas Olšauskas, Ieva Cicėnaitė, Donatas Cesiulis, Kristina Puidokaitė.
Pirmos vietos laimėtojui skiriama 4000 litų (1158.48 eurų) premija.
II vieta projektas „Baltasis paviljonas“. Dalyvis: MB „Martyno Marozo architektūra ir planavimas“. Į.k. 303091182, Mokslininkų g. 11, LT-08412, Vilnius. Projekto autoriai: Martynas Marozas, Viktorija Gailiūtė, Vaiva Šimoliūnaitė.
Antros vietos laimėtojui skiriama 3000 litų (868.86 eurų) premija.
Konkurso projektų recenzijos
Komisijos komentaras
Tikslinti projektų sprendinius vėlesniuose projektavimo etapuose: spręsti probleminius aspektus (santykis su urbanistiniu kontekstu, rekonstruojamų erdvių panaudojimo universalumas ir patogumas, architektūrinių ir konstrukcinių sprendinių racionalumas), bet siekti išlaikyti pasiūlymų originalumą ir išskirtinumą (vykdyti laimėjusio projekto architektūrinės kokybės kontrolę jo realizavimo laikotarpiu).
KONKURSINIAI DARBAI
I vieta. ŠIANDIEN TURGUS







II vieta. BALTASIS PAVILJONAS






